Kindertagesstätte Jakob-Laubach-Straße: Moderner Lärm- und Klimaschutz
Eine Mainzer Baukasten-Kita
© Stadt Mainz

Die Einrichtung Jakob-Laubach-Straße ist die zweite von fünf Kitas in Mainz, die nach dem Prinzip der sogenannten “Baukastenkita” in Holzbauweise errichtet wurde. Diese 1. Generation der Baukasten-Kitas umfasst fünf Einrichtungen. Den Auftakt machte die Kita Zahlbach, die als Prototyp diente und 2023 eröffnet wurde. Es folgten die Kitas in der „Jakob-Laubach-Straße“ und am „Zagrebplatz“ Hechtsheim. Anfang 2024 öffnete auch die Kita Bretzenheim-Süd ihre Türen für die Kinder.
Umgesetzt wurde der Kitabau an von der Abteilung Planen und Bauen der Gebäudewirtschaft Mainz (GWM).
Pädagogische Konzeption der Einrichtung
Das pädagogische Konzept der Kita ist, wie in allen städtischen Kitas in Mainz, situations- und handlungsorientiert. Ein besonderer Schwerpunkt liegt auf Natur und Umwelt. Die Erzieherinnen und Erzieher legen Wert darauf, den Kindern ein Gefühl für die Umwelt zu vermitteln und nachhaltiges Handeln im Alltag zu fördern. Dies zeigt sich auch in der Verwendung von vorwiegend plastikfreien Materialien und Spielzeug, besonders bei den jüngeren Kindern. In der Krippe orientiert sich die Arbeit zudem am Konzept von Emmi Pikler. Aktuell betreut die Kita Kinder in 4 Gruppen, wobei die Kapazität für bis zu 90 Kinder im Alter von 0 bis 6 Jahren in 6 Gruppen ausgelegt ist. Sie beschäftigt derzeit 15 pädagogische Mitarbeiterinnen und Mitarbeiter, 1 Kita-Leitung, 2 Auszubildende, 1 Person im FSJ, 1 Verwaltungskraft, 1 Kita-Helfer, 1 pädagogische Springkraft, 1 Hauswirtschaftskraft und 4 Küchenfeen.
Das aktuelle städtische pädagogische Rahmenkonzeption können Sie hier auf der Seite der Stadt Mainz einsehen und herunterladen.
Ganz besondere Aufmerksamkeit haben die Projektplanerinnen und -planer der Gebäudewirtschaft Mainz dem Schallschutz und der Raumakustik gewidmet und dabei zwei wesentliche Normen als Grundlage verwendet: die DIN 18041 "Hörsamkeit in Räumen” und die DIN 4109 "Schallschutz im Hochbau". Die DIN 18041 liefert wichtige Vorgaben zur Optimierung der Raumakustik, insbesondere im Hinblick auf die Sprachverständlichkeit. Durch die Einhaltung dieser Norm wird sichergestellt, dass die Nachhallzeiten in den Räumen der Kita Jakob-Laubach-Straße angemessen sind und eine klare Kommunikation ermöglichen. Dies ist besonders wichtig in Bereichen wie Gruppenräumen oder Mehrzweckräumen, in denen eine gute Verständigung essentiell ist.
Parallel dazu wurde die DIN 4109 zum Schallschutz im Hochbau berücksichtigt. Diese Norm regelt die Anforderungen an die Schalldämmung zwischen verschiedenen Räumen und gegenüber Außengeräuschen. Durch die Umsetzung dieser Vorgaben wurde ein effektiver Lärmschutz gewährleistet, der sowohl die Konzentration als auch das Wohlbefinden der Kinder und Erzieherinnen fördert und Stress reduziert.
Die Kita wurde in einer Holzrahmenbauweise mit Holzbalkendecken errichtet, da Holzkonstruktionen aufgrund ihrer natürlichen dämpfenden Eigenschaften zur Verbesserung der Raumakustik beitragen. Abgesehen von den Technikräumen ist die Kita Jakob-Laubach-Straße vollflächig mit einer Akustikdecke ausgestattet.
Das Außengelände der Kita wird zum Teil von einem Lärmschutzwall umgeben. Er dient primär dazu, die Kinder vor störendem Umgebungslärm, insbesondere Verkehrslärm, zu schützen und eine ruhigere Spielumgebung im Außenbereich zu schaffen. Der Lärmschutzwall ist somit ein wichtiger Bestandteil eines umfassenden Konzepts zur Lärmreduzierung in Kindertageseinrichtungen, das bauliche, organisatorische und pädagogische Maßnahmen kombiniert, um eine optimale Lernumgebung für die Kinder zu schaffen.
Die konsequente Anwendung beider Normen für den Kitabau hat zu einer hochwertigen akustischen Umgebung geführt. In der Projektplanung wurde somit eine fundierte und normgerechte Lösung für die akustischen Herausforderungen in den Aufenthaltsräumen und im Außenbereich umgesetzt.
Die Kita zeichnet sich auch durch ihre Kunst am Bau aus.
Die künstlerische Gestaltung der Holzfassade stammt von dem Künstler Burghard Müller-Dannhausen. Bei der Gestaltung der Kitaräume legte der Maler den Schwerpunkt auf das Motto 'Dschungel'. Das Cyclam-Violett der Trespa-Fassade leuchtet von innen durch das Grau der Holzfassade und verleiht der Kita ihre Individualität.
Im Inneren setzt sich dieser Farbton fort: Der Kern des Gebäudes - das Treppenhaus und die Erweiterungen der Spielflure - ist in einem Beerenfarbton gehalten, während die übrigen Flurbereiche und "Erwachsenen"-Räume einen taupe-grauen Bodenbelag haben. Die Kinderräume sind mit einem wiesengrünen Bodenbelag ausgestattet.
Das Konzept des Dschungels wird in der Kindertageseinrichtung als künstlerisches Element eingesetzt, das die Vorstellungskraft der Kinder anregt. Es repräsentiert eine fantasievolle Welt, die den Kindern nicht aus dem Alltag bekannt ist. Diese Idee Müller-Dannhausens wird in Form von Kunst am Bau umgesetzt und erscheint als eine Art „Fata Morgana“ oder visionäre Darstellung.
Die Fassade des Gebäudes besteht aus einer Verkleidung mit vertikal angebrachten grauen Latten. Diese Latten sind speziell gestaltet, um an der Gebäudeecke den Eindruck eines Dschungels zu erzeugen. Durch eine gezielte Bemalung verdichtet sich das Lattenmuster an dieser Stelle zu einer Dschungel-Darstellung. Die Farbgebung der Latten verändert sich dabei schrittweise. Ausgehend von einem durchgängigen Grauton entwickelt sich das Bild zu einem grünen Dschungel vor einem roten Himmelhintergrund. Diese graduelle Farbveränderung erzeugt einen visuellen Übergang von der gewöhnlichen Gebäudefassade zur künstlerischen Dschungel Darstellung.
„Der Dschungel ist nicht illustriert, sondern nur zart angedeutet. Alles bleibt offen für die Phantasie. Das heißt, es wird kein Bild des Dschungels geliefert, sondern nur eine atmosphärische Anmutung, in der sich jedes Kind seinen eigenen Dschungel vorstellen kann. Die Kunst nimmt diesen eigenen Dschungel nicht vorweg, sondern dient als Sprungbrett in die Phantasie", so der Künstler.
Die Farben sollen Wohlbefinden und auch die Wahrnehmung von Raumgrößen und - Proportionen positiv beeinflussen. Das durchdachte Farbkonzept schafft ein harmonisches Gesamtbild in der Kita, indem es Architektur, Lichtverhältnisse und Raumfunktionen berücksichtigt. So entsteht hier eine kohärente und ansprechende Raumatmosphäre, die das Wohlbefinden fördert.
Beschreibung der Stadt Mainz: "Die Projektplaner der GWM haben ein nachhaltiges Baukastensystem entwickelt, das die Errichtung von Kitas an verschiedenen Standorten ermöglicht.
Dieses System basiert auf einer Holzrahmenbauweise, die sich ideal für das modulare Planungsprinzip eignet.
Das Baukastensystem zeichnet sich durch seine Flexibilität und Anpassungsfähigkeit aus. Es ermöglicht die Schaffung kompakter Baukörper, die sich sowohl in inner- als auch in außerstädtische Grundstücke harmonisch einfügen können. Das intelligente Planungsmodul der Kitaräume basiert auf einem Raster von 3,25m x 3,25m (10 m2), was eine variable Konzeption aller erforderlichen Räume, für Kitas verschiedener Größen an unterschiedlichen Standorten der Module erlaubt.
Ein besonderer Vorteil des Systems ist die flexible Erschließung. Die Gebäude können sowohl von der Längs- als auch von der Querseite aus zugänglich gemacht werden. Dies gewährleistet eine optimale Anpassung an die jeweiligen örtlichen Gegebenheiten und Erschließungsbedürfnisse. So entsteht ein vielseitiges Konzept, das den unterschiedlichen städtebaulichen Anforderungen in Mainz gerecht wird und gleichzeitig eine effiziente und nachhaltige Bauweise ermöglicht.
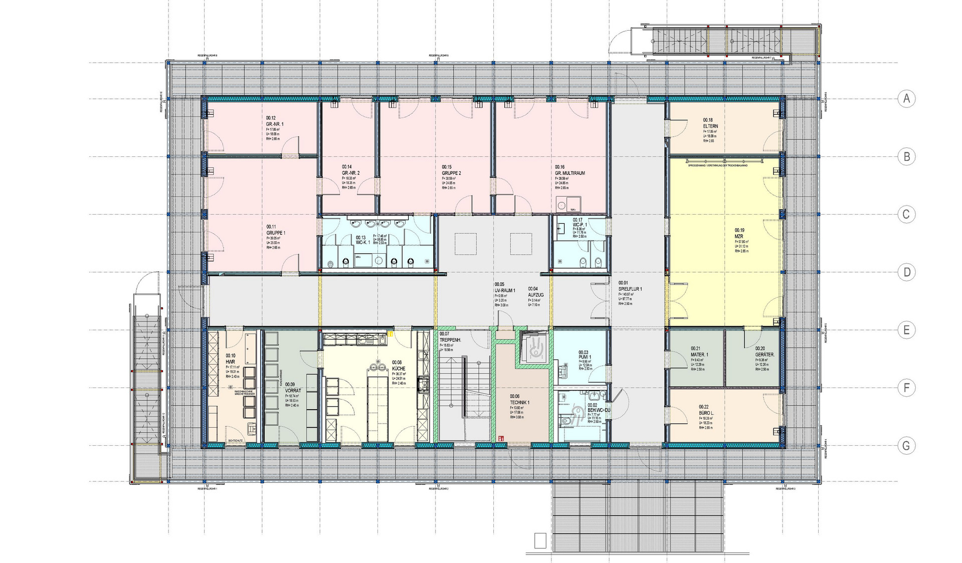
Die Kita Jakob-Laubach-Straße verfügt über eine Nutzfläche von 800 Quadratmetern, verteilt auf zwei Geschosse plus ein Technikgeschoss. Das Grundstück umfasst 2.487 Quadratmeter, wovon etwa 1.600 Quadratmeter als Außenspielgelände genutzt werden.
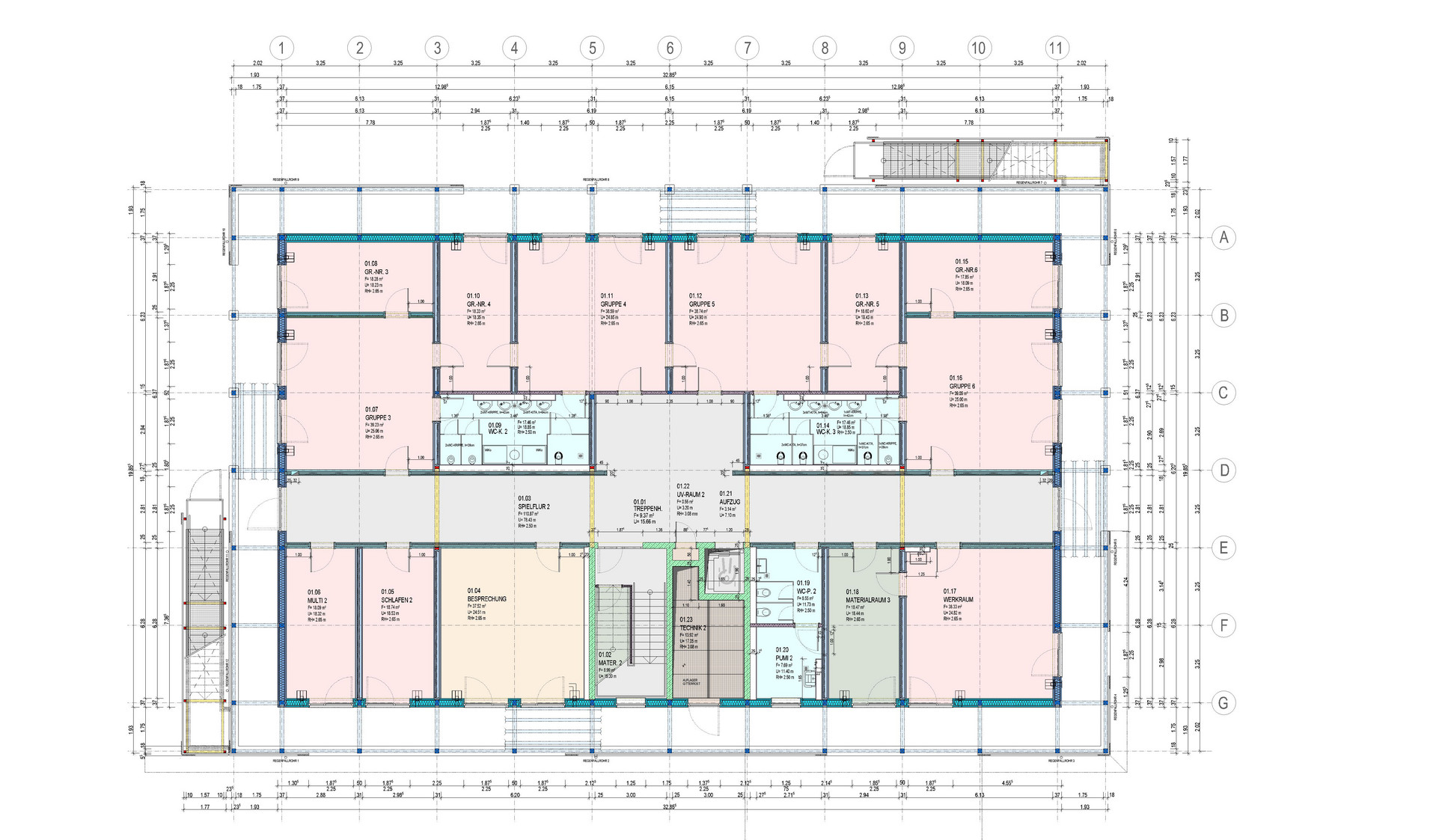
Für das Erdgeschoss gibt es einen Standardgrundriss mit Eingangs- und Bürobereich, einem Mehrzweckraum, einer Küche und zwei U3-Gruppen. Im Obergeschoss befinden sich die vier Kita-Gruppenräume mit ihren Nebenräumen. Das Gebäude kann bei Bedarf aufgestockt werden. Die Aufstockung bietet Platz für ein Staffelgeschoss mit mindestens zwei weiteren Gruppen, Nebenräumen und einer Dachterrasse, die als Spielfläche genutzt werden kann. Kitas im Baukastenprinzip können den Mehrzweckraum mit Nebenräumen, unabhängig vom Kitabetrieb, zum Beispiel abends, nutzen.
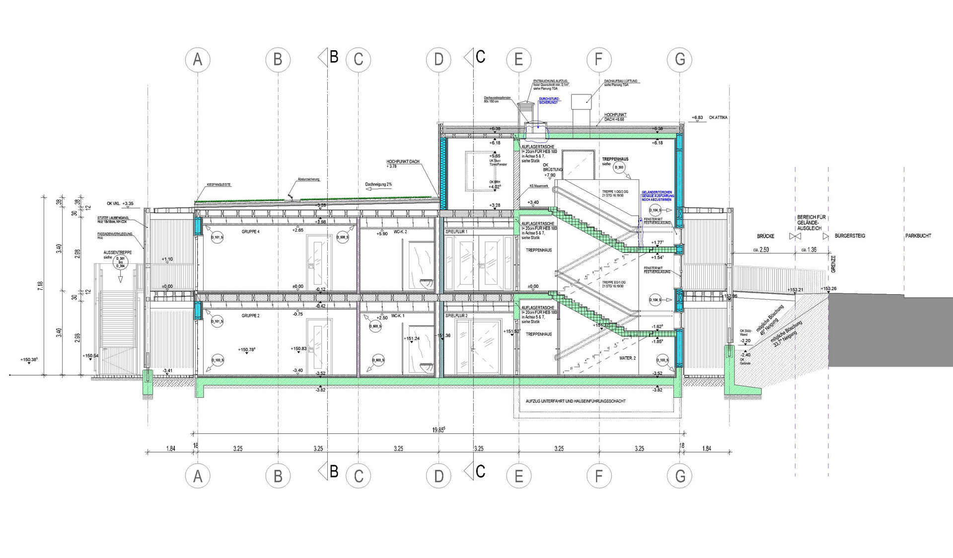
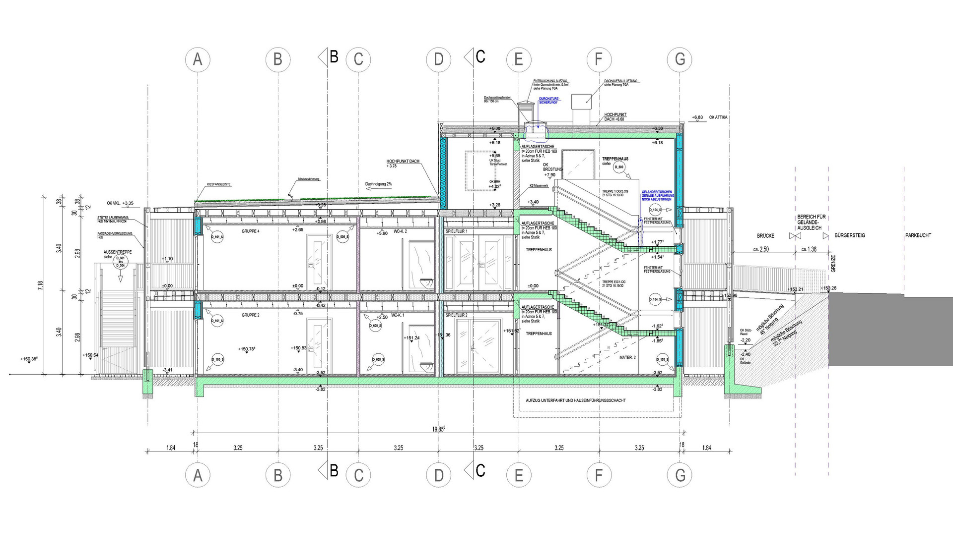
Eine weitere Besonderheit des Gebäudes ist die Holzrahmenbauweise und die durch die Hanglage bedingte gedrehte Anordnung der Geschosse. Der Eingang erfolgt über einen Steg im Erdgeschoss, während das 1. Obergeschoss der anderen Baugeschosse hier zum Untergeschoss bzw. Gartengeschoss wurde. Die Laubengangverkleidung besteht aus vorvergrauten, anthrazitfarbenen Holzlamellen, während die Außenwandverkleidung aus HPL-Platten in Cyclam-Violett (Rotviolett) gefertigt ist.
Auf einer soliden Betonbodenplatte erhebt sich ein Gerüst aus großen, vorgefertigten Holzelementen. Stabilität verleihen ein aussteifendes Treppenhaus und ein vertikaler Erschließungskern aus Betonfertigteilen.
Die Außenhülle des Gebäudes besteht aus hochgedämmten Holzrahmenelementen, deren geschlossene Bereiche mit hinterlüfteten Faserzementplatten verkleidet sind. Faserzementplatten zeichnen sich durch eine hohe Lebensdauer von mindestens 30 bis 40 Jahren aus. Sie sind äußerst robust und widerstandsfähig gegen Witterungseinflüsse, Korrosion, Hitze, Frost und Feuer.
Ein begrüntes Flachdach mit Photovoltaikanlage krönt die Konstruktion und trägt zur ökologischen Ausgewogenheit bei. Die Dachbegrünung verbessert zudem das Raum und Stadtklima und verzögert den Abfluss des Regenwassers.
Ein besonderes Merkmal ist der genannte umlaufende, 1,75 m tiefe und großzügige Laubengang. Mit seiner Holzlamellenfassade aus Lärchenholz bietet er nicht nur witterungsgeschützten Raum auf allen Ebenen, sondern fungiert gleichzeitig als passiver Sonnenschutz und gestalterisches Element, das die Fassade strukturiert.
Lichtdurchflutete Innenräume und eine Verbindung zur Natur werden durch großformatige Holzfenster und -türen geschaffen.
Für zusätzliche Sicherheit und Funktionalität sorgen zwei markante Stahlaußentreppen. Sie setzen sich plastisch vom Hauptgebäude ab, dienen als primärer Fluchtweg für das Obergeschoss und ermöglichen somit die Nutzung der Flure als Spielflure und den Kindern direkten Zugang zu den Spielflächen im Garten.
Um jeder Kindertagesstätte eine individuelle Note zu verleihen, erhält sie eine standortspezifische Farbgebung, die sich in der Platten- und Lamellenfassade widerspiegelt. So entsteht ein harmonisches Zusammenspiel aus Funktionalität, Sicherheit und ästhetischem Design."
Die Kita Jakob-Laubach-Straße verfügt über eine Be- und Entlüftungsanlage mit Wärmerückgewinnung, die dezentral in den Aufenthaltsräumen und zentral in Küchen, Flur und Sanitärräumen installiert ist. Diese Maßnahme trägt nicht nur zur Energieeffizienz bei, sondern hilft auch, die Lärmbelastung durch externe Schallquellen zu minimieren. Dadurch entfallen lange Lüftungskanäle und es sind individuelle Regelungen in den einzelnen Räumen möglich. Diese dezentralen Geräte sind an das Heizsystem angeschlossen, sodass die einströmende Luft je nach Belegung bedarfsgerecht erwärmt oder gekühlt werden kann.
Ein weiteres besonderes Merkmal der Kita ist die Nutzung von Erdwärme für Heizung und Kühlung, welche durch Geothermie-Bohrungen zur Verfügung gestellt wird. Die Kita wird über Gasabsorptions-Sole-Wasser-Wärmepumpen beheizt. Das System der flächendeckenden Fußbodenheizung ermöglicht in den Sommermonaten auch eine passive Kühlung über die Fußbodenheizung. Diese innovative Lösung trägt nicht nur zur Energieeffizienz bei, sondern gewährleistet auch ganzjährig angenehme Temperaturen für Kinder und Personal.
Der Strom für das Gebäude wird von einer auf dem begrünten Dach angeordneten PV- Anlage (10 kWp) erzeugt, die den Grundbedarf an Strom deckt.
Eckdaten der Kita
Kita Jakob-Laubach-Straße Mainz-Weisenau
- 6 gruppige Kita auf 2 Geschosse verteilt.
- Grundstücksfläche: 2.487 m²
- Außenabmessung: 24,00 m x 37,00 m
- Bruttogrundfläche: 1.728 m²
- Nutzfläche NUF+NUF 7: 791 m²
- Bruttorauminhalt: 6.115 m³
- Außenspielgelände: 1.606 m²
- Bebaute Fläche (inkl. Laubengang + Treppen): 874 m²
- Energiesparender Wärmeschutznachweis nach EnEV 2016 und Einhaltung des EEWärmeG und Erfüllung sommerlicher Wärmeschutz nach DIN 4108-2
- Schallschutznachweis nach DIN 4109
Baukosten
Die Gesamtbaukosten für die Kita Jakob-Laubach-Straße beliefen sich auf 6,8 Millionen Euro (wobei das Land Rheinland-Pfalz einen Zuschuss von 900.000 Euro für die Schaffung von Kita-Plätzen gewährt hat)
Fotos der Einrichtung
Wenn Sie auf die Fotos klicken, werden diese vergrößert angezeigt.
Baupläne
© Stadt Mainz

© Stadt Mainz

© Stadt Mainz

© Stadt Mainz

Hier finden Sie von der Stadt Mainz zur Verfügung gestellte Ausführungspläne und Grundrisse beider Geschosse.










